Понятие таунхауса возникло в Европе еще в 19 веке. В начале оно означало строения с городскими квартирами для состоятельных людей. В Украине сейчас этот термин предполагает определение многоуровневого жилья, которое имеет собственную систему отопления и небольшой клочок земли рядом. И если в Европе таунхасы до сих пор воспринимаются как жилье в черте города, то в Украине они возводятся преимущественно в пригородных зонах.

Как правило, застройщики таунхаусов предлагают свои услуги в этом сегменте в формате под ключ. Такой способ обеспечивает комплексные действия, которые считаются наиболее рациональными. При этом за все этапы работ отвечает один исполнитель, гарантирующий качество результата и экономию финансовых вложений.
Очевидная выгода наблюдается на всех видах строительных объектов. Для заказчика важно, чтобы стоимость таунхауса вписывалась в его бюджет без критических нагрузок. При заключении договора строительная компания обязательно учитывает потребности заказчика, предлагая типовые проекты таунхаусов, где можно вносить изменения в запрос клиента.
Не менее важно и то, что услуги по строительству под ключ таунхаусов означают отсутствие необходимости для заказчика самому контролировать весь процесс. Кроме того, в результате получает полностью готовый к заселению объект.

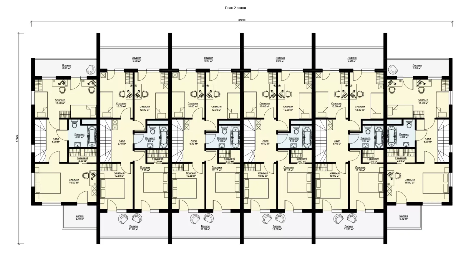
По сути, такой формат здания – это несколько квартир с общими боковыми стенами. У каждой из них есть собственный подъезд к дому, крыльцо, небольшой земельный участок.
При строительстве таунхаусов в первую очередь учитывается площадь земельного надела под объект. Лучшим вариантом считается участок правильной прямоугольной формы, который обеспечит удобный доступ ко всем частям здания. При этом количество отдельных жилых блоков не ограничивается – так же, как не ограничивается и план самой квартиры. Чаще всего это двухэтажные квартиры, где на первом этаже размещается кухня, соединенная с гостиной, санузел. Второй этаж занимают спальни для обитателей.
При планировании таунхаусов учитываются особенности общего контура. Это требует особых расчетов и чертежей таунхаусов, где внимание уделяется утеплению и шумоизоляции. В зависимости от размера земельного участка готовые проекты рассчитаны на здания от двух до десяти квартир. Это означает, что такое строительство с нуля позволяет заказчику в дальнейшем экономно использовать пространство двора, обустроить свою территорию с использованием мини-прудов, клумб и других элементов экстерьерного дизайна.
Преимуществами такого жилья являются:
Таунхаус под ключ – это идеальный вариант строительства для тех, кто хочет проживать в собственном доме, но нет финансовой возможности пока приобрести коттедж. Разнообразие архитектурных проектов от современных застройщиков позволяет подобрать для себя лучший с точки зрения практичности и бюджета таунхауса вариант.

Сколько стоит таунхаус – такой вопрос интересует всех, кто планирует приобрести подобное жилье. Цены на строительство могут колебаться в зависимости от тенденций современного рынка, что обязательно учитывается при планировании и формировании проектов. Наиболее финансово выгодными считаются дома на несколько семей – они быстро возводятся и быстро окупаются.
Также стоит знать, что расценки на строительство зависят от многих факторов, которые обязательно учитываются при формировании сметы строительства, а именно:
Предварительную стоимость заказчик может узнать из прайса строительства таунхаусов. Обычно она рассчитывается как цена за м2 таунхауса. В общей сложности можно сказать, что на 2025 год она составляет примерно 170 у.е. /кв. м. Определить окончательную стоимость можно только после согласования с заказчиком.